Local News
Thieves Lane homes approved
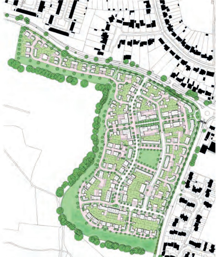
A proposed development of 254 homes on land to the west of Thieves Lane has been granted planning permission following a meeting of the District Council's Development Control Committee.

The former green belt site is allocated for around 250 homes in the District Plan, which was adopted last year following a public examination by the government's Planning Inspectorate and subsequent approval by a Government Inspector.
The planned development is made up of a mixture of houses and flats, including some larger town house style dwellings. A main access road runs through the site from Welwyn Road to Thieves Lane with a secondary road and more minor shared access roads serving groups of dwellings.
The layout is characterised by five distinct character areas and the dwellings within each of these character areas vary. Across the site the properties sought are predominantly two storeys in height, although the flatted blocks and some larger town house style dwellings are three storeys in scale. In addition single storey garages and car ports are proposed, although some properties feature accommodation within the roof space.
The proposed dwellings are considered to be of traditional design with various design elements that add interest to the elevations. These are reflective of the predominant traditional style architecture of Hertford.
Planning Officer's report

The development is also expected to benefit from new bus services, paid for partly by the developer.
Parking for 583 cars is included in the proposals. with electric charging points.
Social housing also features in the plans with a mixture of 102 affordable housing units, including one and two-bed flats along with two, three and four-bedroomed houses.
Infrastructure improvements and contributions include £3.5m for education, £40,000 for libraries, and around £500,000 for local facilities such as allotments, swimming, sports halls, gyms, sports pitches and community centres.
The Development Committee expressed disappointment at the lack of appropriate engagement from the local NHS, meaning that substantial contributions to local healthcare did not feature in the plans.
Objections to the proposals were received from Herts Middlesex Wildlife Trust, The Gardens Trust and Friends of Panshanger Park.
Want to submit a news item?
If you have a press release you'd like to send us or suggestions for a news story related to Hertford please email newsdesk(at)hertford.org.uk or fill out the contact form.


